Pécsvárad - Eladó Ház
119 m2
140.000.000 Ft
340170
Varázslatos birtok, lakható nyaralóval, vendégházzal, saját horgásztóval
Leírás
Most megvalósíthatja régi álmát! Saját horgászparadicsomot vehet Pécsvárad határában!
Közel 2 hektár területen, két saját horgásztóval, gondozott parkkal körülvett egyedi, exkluzív kialakítású nyaraló eladó.
Az állandó lakásra is alkalmas eredeti téglaépület 2005-ben épült. 2022-ben teljeskörű felújítás és bővítés során, hőszigetelést követően kapott kívül-belül faburkolatot és egy nagyméretű üvegezett panorámás télikertet. Az épület jelenleg is meglévő, vegyes tüzelésű kazánnal működő radiátoros központi fűtés rendszere kiegészült egy 7 kW-os, tovább bővíthető napelemrendszerrel és 3 db hűtő-fűtő klímával, ami a teljes épületet képes ellátni.
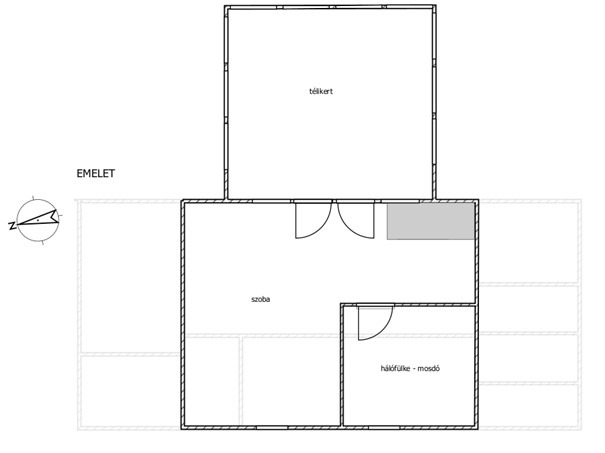
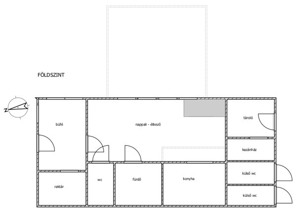
A belső két szintes épület 3 és fél szobás, bruttó 119 m2 (nettó 95 m2) alapterületen. Különlegessége a tó fölé kinyúló, körben üvegezett, panorámás télikert.
A parkban további melléképületek, 3 mobil garázs, 5 kisméretű faház mellett egy 3 fő részére kialakított, minikonyhával, fürdőszobával felszerelt 18 m2-es fa vendégház, valamint egy közel 30 m2-es, rönkfa bútorokkal berendezett, fedett terasz is található.
A birtok igazi ékköve a két darab saját horgásztó, 3 kis szigettel. Vizüket a Zengő patak mellett saját források is táplálják. A tavakban elsősorban békés halak, amúrok, keszegek, kárászok, valamint 15-30 kg-os pontyok élnek. A tavak körüli sétányon fiatal császárfák, valamint a legkülönbözőbb gyümölcsfák sorakoznak.
A birtok biztonságát távműködtetésű kapu, kiépített mozgásérzékelő- és kamerarendszer támogatja. A főépület emelete kivételével az egész birtok akadálymentes.
Kapcsolati adatok
Érdeklődjön az ingatlanról, e-mailben!
Hasonló ingatlanok
Harkány
Nagypolgári eleganciájú lakás és egyben exkluzív rendezvényhelys...
Pécs (Fehérhegy)
118 m2-es, 4 szobás családi ház, megkezdett felújítás alatt